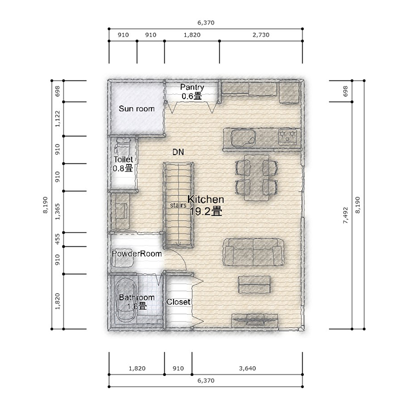
2階LDK Style
2階LDK Style
プライバシーと開放感
ともに叶える設計
- こんなアナタにオススメ
- 採光や眺望を重視したい方
- 都市部や狭小地で快適な住空間を作りたい方
- プライバシーや防犯性を確保したい方
- 1階を駐車場や趣味のスペースに活用したい方
特長
眺望を活かした設計
2階にLDK(リビング・ダイニング・キッチン)を配置することで、周囲の建物に遮られにくく、採光や通風が良い空間を作れます。特に景色が良いエリアでは、窓からの眺めを楽しむ間取りが可能です。
プライバシーの確保
リビングが2階にあることで、外からの視線を遮ることができ、通行人や隣家からのプライバシーを守れます。
土地条件への柔軟性
狭小地や変形地など、1階部分のスペースが限られる土地でも、広々としたLDKを確保できます。
音の問題を軽減
LDKが2階にあることで、生活音が下の階(1階や地面)に伝わりにくく、子どもが遊んだり、家族が集まったりしても、近隣への音の影響が軽減されます。
メリット

採光と通風の向上
2階は周囲の建物の影響を受けにくいため、日当たりが良く、風通しも良好で、快適なリビング空間を作ることができます。
防犯性の向上
生活の中心となるLDKが2階にあるため、不在時に1階部分の防犯対策をしやすくなり、窓を開けていても外から侵入されにくい安心感があります。

土地の有効活用
1階部分を駐車場や収納、個室スペースにすることで、限られた土地面積を効率的に使えます。
眺めを活かした暮らし
窓の配置を工夫し、自然景観や夜景を楽しむ特別な空間を作ることができます。
ライフスタイル
ここは、眺めとともに暮らす家。
朝、窓から光と風が舞い込み、2階のリビングで目を覚ます。
昼、家族の声が響き、開放感と静けさが心を包む。
夜、街の灯りが優しく揺れ、景色とともに一日が溶けていく。
ここは、眺めとともに暮らす家。










